新屋敷 中古一戸建て
高知市新屋敷 中古一戸建てnew
|
| 所在地 | 高知県高知市新屋敷 |
|---|---|
| 交通 | JR土讃線 円行寺口駅 徒歩3分 |
| 築年月 | 2005年7月 | 新築/中古 | |
|---|---|---|---|
| 面積 | 104.71m² | 計測方式 | |
| バルコニー | 向き | ||
| 建物階数 | 地上2階 | 部屋階数 | |
| 建物構造 | 木造 | ||
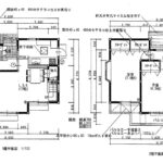
| 間取内容 |
㊤洋6.2・洋7.5・洋6 ㊦和4.5・LDK17 |
||
| 駐車場 | 空有 | 取引態様 | 仲介 |
| 引渡/入居時期 | 相談 | 現況 | |
| 地目 | 宅地 | 用途地域 | 第一種中高層住居専用 |
| 都市計画 | 市街化区域 | 地勢 | 平坦 |
| 土地面積 | 202.96m² | 土地面積計測方式 | 公簿 |
| 建ぺい率 | 60% | 容積率 | 200% |
| 土地権利 | 接道状況 | 一方 | |
| 接道方向1 | 東 | 接道間口1 | 4.2m |
| 接道種別1 | 公道 | 接道幅員1 | 3m |
| 周辺環境 |
高知市立小高坂小学校 約690m 高知市立城北中学校 約749m よどやドラッグ高知南万々店 約534m ローソン高知南万々店 約423m ローソン高知福井店 約787m よどや ドラッグ高知福井店 約1018m サニーマート中万々店 約978m |
||
| 設備・条件 |
トイレ2ヶ所、温水洗浄便座、バス・トイレ別、追焚機能、シャワー、浴室に窓、洗面所、シャワー付洗面化粧台、システムキッチン、対面式キッチン、3口コンロ、食器洗浄乾燥機、収納スペース、床下収納、全居室収納、エアコン、室内洗濯機置場、フローリング、照明器具、モニター付インターホン、プロパンガス、上水道、下水道、給湯
トイレ1Fウォシュレット |
||
| 物件番号 | 1729 | ||
| 特記事項 | 閑静な住宅地にあるお家が登場。各居室南向きの造りなので日当たり良好。間取りはゆとりと独立感のある4LDKタイプ。小学校・商業施設近くの立地なので日々の生活に便利な住環境。詳細についてはお問い合わせください | ||
※物件掲載内容と現況に相違がある場合は現況を優先と致します。
お気軽にお問い合わせください
サンシャインみづき
〒780-0976 高知県高知市みづき一丁目108番地2
TEL 088-826-1007 FAX 088-826-1008
営業時間 AM10;00~PM7:00 定休日 毎週木曜日
宅建免許番号: 高知県知事 (4) 第2596号
お問合せフォーム
































