高知市旭天神町 中古一戸建て

旭天神町 中古一戸建て

高知市旭天神町 中古一戸建て 画像1 高知市旭天神町 中古一戸建て 画像2 高知市旭天神町 中古一戸建て 画像3 高知市旭天神町 中古一戸建て 画像4 高知市旭天神町 中古一戸建て 画像5 高知市旭天神町 中古一戸建て 画像6 高知市旭天神町 中古一戸建て 画像7 高知市旭天神町 中古一戸建て 画像8 高知市旭天神町 中古一戸建て 画像9 高知市旭天神町 中古一戸建て 画像10
価格
2,380万円
中古戸建
間取
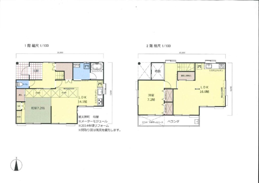
5LDK
所在地 高知県高知市旭天神町  
交通
バス(蛍橋 停歩5分)
築年月 1988年10月 新築/中古 中古
面積 112m² 計測方式
バルコニー 向き
建物階数 地上2階  部屋階数
建物構造 木造
間取内容
㊤洋7.2・LDK16.5 ㊦和7.2・LDK14.1  離れ;洋4.5・洋4.5・DK8
駐車場 取引態様 仲介
引渡/入居時期 相談 現況
地目 宅地 用途地域 第一種中高層住居専用
都市計画 市街化区域 地勢 平坦
土地面積 185.4m² 土地面積計測方式 公簿
建ぺい率 60% 容積率 200%
周辺環境
設備・条件
物件番号 1694
特記事項 3世帯で暮らしていける離れ付のお家が登場。母屋、2014年頃に水廻りを含むリフォーム済み。メーターモジュール設計の2世帯住宅。離れ、2020年ごろにリフォーム済み。電気・水道は母屋と分かれており、賃貸としても使用をすることができます。詳細についてはお問い合わせください
高知市旭天神町 中古一戸建て 画像11高知市旭天神町 中古一戸建て 画像12高知市旭天神町 中古一戸建て 画像13高知市旭天神町 中古一戸建て 画像14高知市旭天神町 中古一戸建て 画像15高知市旭天神町 中古一戸建て 画像16高知市旭天神町 中古一戸建て 画像17高知市旭天神町 中古一戸建て 画像18高知市旭天神町 中古一戸建て 画像19高知市旭天神町 中古一戸建て 画像20高知市旭天神町 中古一戸建て 画像21高知市旭天神町 中古一戸建て 画像22高知市旭天神町 中古一戸建て 画像23高知市旭天神町 中古一戸建て 画像24高知市旭天神町 中古一戸建て 画像25高知市旭天神町 中古一戸建て 画像26高知市旭天神町 中古一戸建て 画像27高知市旭天神町 中古一戸建て 画像28
※物件掲載内容と現況に相違がある場合は現況を優先と致します。

こちらの物件もおすすめです。

  • 高知市加賀野井 中古一戸建て高知市加賀野井 中古一戸建て
    880万円 5LDK
    高知市 加賀野井
  • 高知市鴨部高町 中古一戸建て高知市鴨部高町 中古一戸建て
    1,580万円 4DK
    高知市 鴨部高町
  • 高知市潮見台 中古一戸建て高知市潮見台 中古一戸建て
    1,680万円 4LDK
    高知市 潮見台
  • 高知市百石町 中古一戸建て高知市百石町 中古一戸建て
    2,380万円 5LDK
    高知市 百石町

    とさでん交通桟橋線桟橋通四丁目駅

お気軽にお問い合わせください

サンシャインみづき
〒780-0976 高知県高知市みづき一丁目108番地2
TEL 088-826-1007 FAX 088-826-1008
営業時間 AM10;00~PM7:00 定休日 毎週木曜日
宅建免許番号: 高知県知事 (4) 第2596号

お問合せフォーム