北端町 旭ハイツ 3.3
高知市北端町 旭ハイツ 303
|
|
| 所在地 | 高知県高知市北端町 |
|---|---|
| 交通 | JR土讃線 旭駅 徒歩2分 |
| 築年月 | 1979年5月 | 新築/中古 | |
|---|---|---|---|
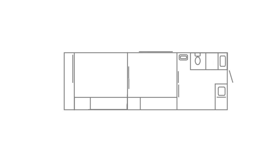
| 面積 | 33.50m² | 計測方式 | |
| バルコニー | 向き | ||
| 建物階数 | 地上3階 | 部屋階数 | 3階 |
| 建物構造 | 鉄骨造 | ||
| 間取内容 |
|
||
| 駐車場 | 取引態様 | 仲介 | |
| 引渡/入居時期 | 相談 | 現況 | |
| 周辺環境 |
高知市立旭東小学校 約249m 高知中学校 約249m |
||
| 設備・条件 |
トイレ、バス・トイレ別、シャワー、洗面台、ガスキッチン、押入、エアコン、全居室フローリング、照明器具、洗濯機、冷蔵庫、角部屋、駐輪場有(無料)、バイク置場有(無料) |
||
| 物件番号 | 1030 | ||
| 特記事項 | 閑静な住宅地にあるお部屋が登場。2面採光なので日当たり良好。低額所得者向け。詳細についてはお問い合わせください | ||
※物件掲載内容と現況に相違がある場合は現況を優先と致します。
お気軽にお問い合わせください
サンシャインみづき
〒780-0976 高知県高知市みづき一丁目108番地2
TEL 088-826-1007 FAX 088-826-1008
営業時間 AM10;00~PM7:00 定休日 毎週木曜日
宅建免許番号: 高知県知事 (4) 第2596号
お問合せフォーム










