カテゴリ:新築一戸建て
|
| 所在地 | 高知県高知市 一ツ橋町 |
| 交通 | バス(とさでん交通三園町 停歩6分) |
| 築年月 | 2025年7月 | 構造 | 木造 |
| 階建 | 地上 2階 | 部屋階数 | |
| 面積 | 81.15m² 土地 95.87m² | 建蔽率/容積率 | 60% / 160% |
| 物件番号 | 1603 | ||
| 設備・条件 |
トイレ2ヶ所、温水洗浄便座、タンクレストイレ、バス・トイレ別、追焚機能、オートバス、シャワー、ミストサウナ、浴室乾燥機、浴室暖房、浴室1坪以上、シャワー付洗面化粧台、システムキッチン、カウンターキッチン、3口コンロ、食器洗浄乾燥機、浄水器、キッチン床暖房、床下収納、全居室収納、クローゼット、ウォークインクローゼット、シューズインクローゼット、床暖房、インターネット対応、洗濯機置場、全居室フローリング、クッションフロア、複層ガラス、ハイサッシ、雨戸、シャッター、照明器具、人感センサー付照明、オートロック、モニター付インターホン、ダブルロックドア、ディンプルキー、火災報知器(報知器)、都市ガス、電気、上水道、下水道、側溝、給湯、省エネ給湯器 |
||
|
| 所在地 | 高知県高知市 一ツ橋町 |
| 交通 | バス(とさでん交通三園 停歩6分) |
| 築年月 | 2025年6月 | 構造 | 木造 |
| 階建 | 地上 2階 | 部屋階数 | |
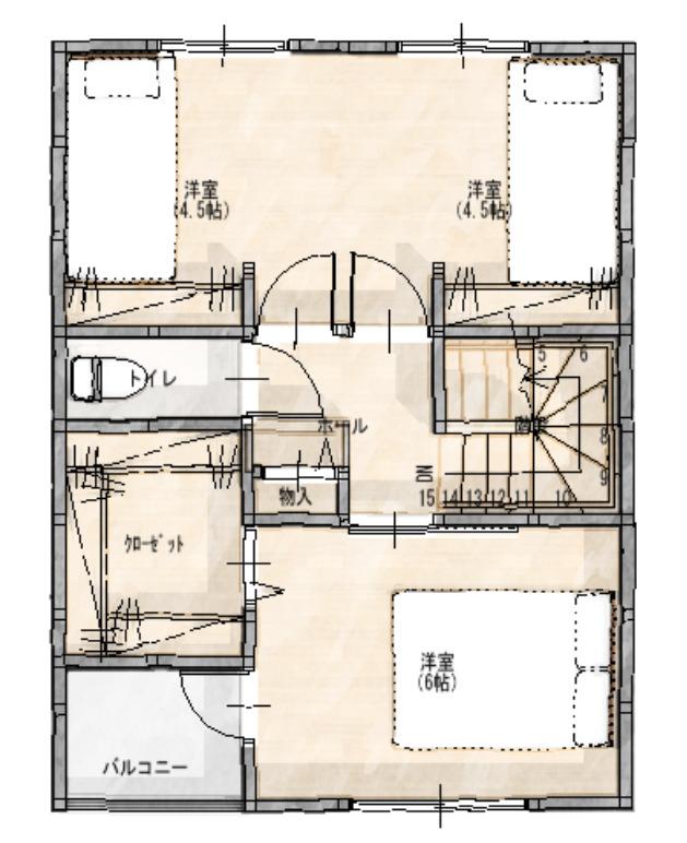
| 面積 | 81.14m² 土地 99.95m² | 建蔽率/容積率 | 60% / 160% |
| 物件番号 | 1604 | ||
| 設備・条件 |
トイレ2ヶ所、温水洗浄便座、バス・トイレ別、追焚機能、オートバス、シャワー、ミストサウナ、浴室乾燥機、浴室暖房、浴室1坪以上、シャワー付洗面化粧台、システムキッチン、カウンターキッチン、3口コンロ、食器洗浄乾燥機、浄水器、キッチン床暖房、床下収納、全居室収納、クローゼット、ウォークインクローゼット、シューズインクローゼット、床暖房、インターネット対応、洗濯機置場、全居室フローリング、クッションフロア、複層ガラス、ハイサッシ、雨戸、シャッター、照明器具、人感センサー付照明、オートロック、モニター付インターホン、ダブルロックドア、ディンプルキー、火災報知器(報知器)、都市ガス、電気、上水道、下水道、側溝、給湯、省エネ給湯器 |
||
|
| 所在地 | 高知県高知市 一宮東町 |
| 交通 | バス(青山保育園前 停歩2分) |
| 築年月 | 2025年6月 | 構造 | 木造 |
| 階建 | 地上 2階 | 部屋階数 | |
| 面積 | 81.56m² 土地 128.69m² | 建蔽率/容積率 | 60% / 150% |
| 物件番号 | 1354 | ||
| 設備・条件 | |||
|
| 所在地 | 高知県高知市 中万々 |
| 交通 | JR土讃線 円行寺口駅 徒歩12分 |
| 築年月 | 2026年3月 | 構造 | 木造 |
| 階建 | 地上 2階 | 部屋階数 | |
| 面積 | 96.26m² 土地 102.81m² | 建蔽率/容積率 | 60% / 200% |
| 物件番号 | 1586 | ||
| 設備・条件 | トイレ2ヶ所、温水洗浄便座、バス・トイレ別、追焚機能、シャワー、浴室乾燥機、浴室暖房、浴室に窓、浴室1坪以上、シャワー付洗面化粧台、システムキッチン、カウンターキッチン、独立型キッチン、対面式キッチン、3口コンロ、グリル、浄水器、収納スペース、床下収納、全居室収納、クローゼット、シューズインクローゼット、24時間換気システム、室内洗濯機置場、全居室フローリング、複層ガラス、シャッター、モニター付インターホン、ダブルロックドア、カードキー、火災報知器(報知器)、都市ガス、電気、上水道、下水道、省エネ給湯器 |
||
|
| 所在地 | 高知県高知市 中秦泉寺 |
| 交通 | JR土讃線 高知駅 徒歩32分 |
| 築年月 | 2026年4月 | 構造 | 木造 |
| 階建 | 地上 2階 | 部屋階数 | |
| 面積 | 70.96m² 土地 59.73m² | 建蔽率/容積率 | 60% / 200% |
| 物件番号 | 1645 | ||
| 設備・条件 | |||
|
| 所在地 | 高知県高知市 中須賀町 |
| 交通 | とさでん交通市内線 旭町一丁目駅 徒歩5分 |
| 築年月 | 2025年112月 | 構造 | 木造 |
| 階建 | 地上 2階 | 部屋階数 | |
| 面積 | 95.37m² | 建蔽率/容積率 | 60% / 200% |
| 物件番号 | 1609 | ||
| 設備・条件 | |||
|
| 所在地 | 高知県高知市 中須賀町 |
| 交通 | とさでん交通市内線 旭町一丁目駅 徒歩5分 |
| 築年月 | 2026年2月 | 構造 | 木造 |
| 階建 | 地上 2階 | 部屋階数 | |
| 面積 | 107.65m² 土地 138.25m² | 建蔽率/容積率 | 60% / 200% |
| 物件番号 | 1610 | ||
| 設備・条件 |
トイレ2ヶ所、温水洗浄便座、浴室乾燥機、浴室暖房、システムキッチン、カウンターキッチン、対面式キッチン、3口コンロ、浄水器、パントリー、収納スペース、床下収納、ウォークインクローゼット、人感センサー付照明、フットライト、モニター付インターホン、ディンプルキー、防犯カメラ、都市ガス、電気、上水道、下水道 |
||
|
| 所在地 | 高知県高知市 介良 |
| 交通 | バス(とさでん交通中野団地西口 停歩2分) |
| 築年月 | 2026年2月 | 構造 | 木造 |
| 階建 | 地上 2階 | 部屋階数 | |
| 面積 | 79.48m² 土地 98.88m² | 建蔽率/容積率 | 60% / 100% |
| 物件番号 | 1437 | ||
| 設備・条件 | |||
|
| 所在地 | 高知県高知市 介良 |
| 交通 | バス(中野団地二区 停歩2分) |
| 築年月 | 2026年3月 | 構造 | 木造 |
| 階建 | 地上 2階 | 部屋階数 | |
| 面積 | 84.45m² 土地 103.76m² | 建蔽率/容積率 | 60% / 100% |
| 物件番号 | 1649 | ||
| 設備・条件 | |||
価格
住所


















